En Venta
VENTA LOCALES EN SAN LORENZO Y GUEMES
Código: 188268

San Lorenzo & Güemes, Comodoro Rivadavia, Chubut, Argentina, Mar Del Plata, Buenos Aires, Argentina.

USD620.000

Local Comercial
Compartir esta Propiedad

Descripción de la Propiedad

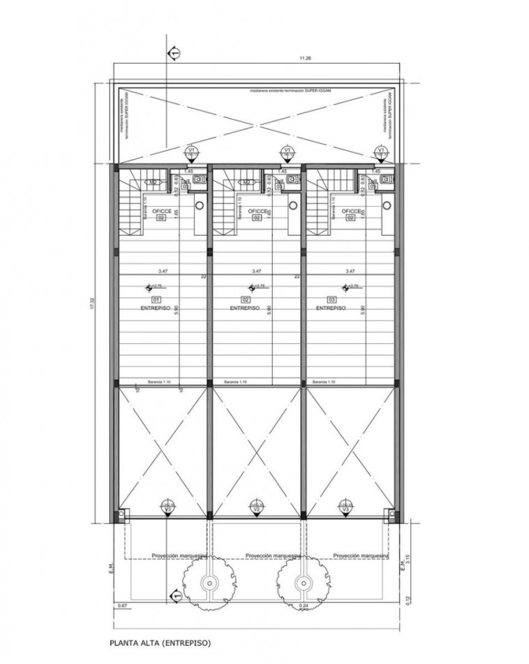
Venta locales en la zona de San Lorenzo y Güemes frente a la plaza del agua
Entorno ideal para emprendimientos comerciales o de servicios
Cada local está distribuido en dos plantas, con un total de 78 m² cubiertos más patio. En planta baja cuenta con 48 m² (3,50 mts x 13,80 mts), y en planta alta con 30 m² (3,50 mts x 8,60 mts). Además, posee un espacio de patio al fondo que aporta luz natural !
El valor publicado es por los 3 locales en block. Se venden con muy buena renta
Escucha propuestas

Mas detalles